4976 ELM LEAF DRIVEBROOKSVILLE, FL 34601
Due to the health concerns created by Coronavirus we are offering personal 1-1 online video walkthough tours where possible.




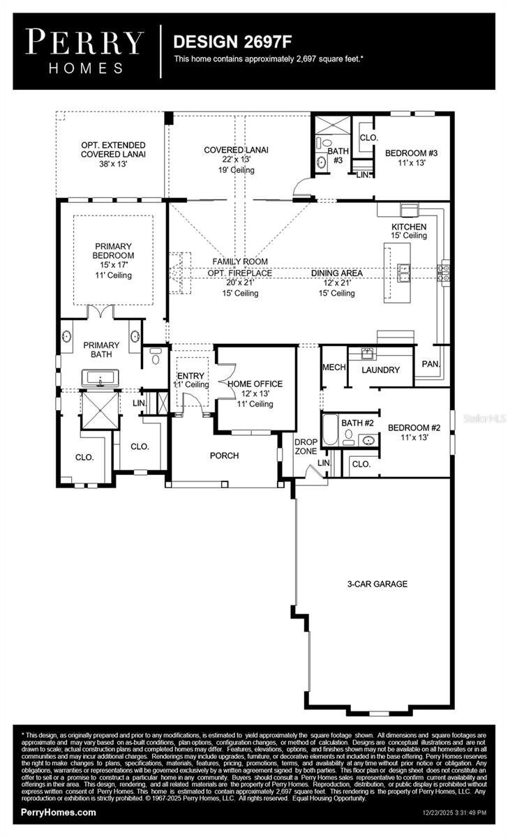
Under Construction. A welcoming covered front porch leads into the entryway of this home, where a private home office awaits just beyond the door. The open-concept family room features soaring ceilings and a sliding glass door that opens to an extended covered lanai overlooking the backyard. Flowing from the family room, the dining area connects to a well-appointed kitchen, which includes an island with built-in seating, a -5-burner gas cooktop, ample counter space, and a walk-in pantry. Hardwood floors throughout main living area. The primary bedroom, located off the main living area, is highlighted by a wall of windows. French doors open to a luxurious primary bathroom with dual vanities, a garden tub, a glass-enclosed shower, and two walk-in closets. Secondary bedrooms each come with their own full private bathroom and walk-in closet. The laundry room and drop zone are conveniently located along the hallway that leads to the three-car garage.
| 7 hours ago | Listing updated with changes from the MLS® | |
| 15 hours ago | Listing first seen on site |
Listing information is provided by Participants of the Stellar MLS. IDX information is provided exclusively for personal, non-commercial use, and may not be used for any purpose other than to identify prospective properties consumers may be interested in purchasing. Information is deemed reliable but not guaranteed. Properties displayed may be listed or sold by various participants in the MLS Copyright 2026, Stellar MLS.
Last checked: 2026-04-28 09:05 AM EDT